Создайте неповторимый дизайн фасада с четким рисунком при помощи планок Lamella sharp 45.
Доступно также с перфорацией и подсветкой.
| Название | Lamella Sharp 45 |
|---|---|
| Крепежные отверстия | Овальные |
| Форма вентиляционного отверстия |
Овальные |
| Крепёж | Скрытый |
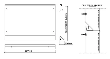
| Эффективная высота | Стандартная 300 (300 - 350) мм |
| Ширина |
150 - 3000 мм |
| Глубина |
40 мм |
| Диаметр крепежных отверстий | Овальные 5 x 10 мм |
| Размер вентиляционных отверстий нижнего края |
Овальные 5 x 15 мм |
СХЕМА РАЗМЕЩЕНИЯ ПЕРФОРАЦИИ
| Размер/отверстие | мм |
|---|---|
| a | ≥10 |
| b | ≥10 |
| c | d+15, d+25, d+30 |
| d | 12, 16, 20, 30 |
| Материал | Толщина материала (мм) | Вес (кг/м2) | Покрытие | Реакция на огонь |
|---|---|---|---|---|
| Сталь | 1.2 | 13.1 | Hiarc * | A1 |
| Сталь | 1.2 | 13.1 | Порошковое покрытие | A2 - s1, d0 |
| Алюминий | 1.5 | 5.72 | Порошковое покрытие | - |
|
Алюминий |
1.5 |
5.72 |
PVDF * / ** | - |
*) Не доступно с перфорацией
**) Не складской материал
ПОКРЫТИЯ
| Палитра | Покрытие | Цвет |
| Складская | HIARC | RR20, RR21, RR23, RR40, RR41, RR42, RR43 |
|
|
HIARC Matt | RR40, RR41, RR45 |
| Стандартная | HIARC и Порошковая краска | RR11, RR22, RR24, RR26, RR29, RR30, RR31, RR32,RR33, RR34, RR35, RR36, RR37, RR44, RR45, RR750 |
| Уникальная | HIARC и Порошковая краска | RAL и NCS по запросу |
Минимальный размер заказа:
- Стандартная палитра: Без ограничений
- Складская и уникальная палитра: с покрытием HIARC - 900 м2; с порошковой окраской -100 м2

