Запрос на расчет
Серийные здание Венталл - здания павильонного типа на основе стандартных компонентов. Каркас, кровля и стены - все, что может понадобиться для постройки здания, вы получаете за одну поставку.
Выбор ограждающих конструкция основывается на действующих в районе строительства нормах, например, таких как требования теплоустойчивости. Проектирование каркаса, кровельных и стеновых конструкций входит в комплект поставки.
Система «Спайдер-В» позволяет стыковать здания между собой, образуя многопролетные комплексы для применения в производственной, складской, логистической и сельскохозяйственной отраслях.
В настоящее время компанией VENTALL представлен вариант использования ферменной конструкции в качестве каркаса зданий системы Спайдер-В®. Данная разработка нашла широкое применение в агропромышленном строительстве. Конструктив представляют собой плоскую ферму, где все элементы выполнены из гнутого оцинкованного профиля. Наличие ровного горизонтального нижнего пояса позволяет обшивать потолок здания изнутри сэндвич-панелями. Отсутствие пористых материалов в покрытии сэндвич-панелей упрощает чистку и предотвращает появление грязи и болезнетворных бактерий в помещении. Благодаря использованию ферм здания обладают низкой металлоемкостью, что соответственно снижает их стоимость. Данная разработка позволяет применять быстровозводимые здания Венталл уже и в пятом снеговом районе - в который попадает довольно большая территория России. Сборка быстровозводимых зданий Венталл осуществляется на болтах и не требует сварки.
Размеры
|
|
Однопролетное |
Многопролетное |
|---|---|---|
| Ширина |
6 м - 21 м |
Составное здание из нескольких однопролетных* |
| Высота |
3 м - 6 м |
3 м - 6 м |
| Уклон кровли |
20% |
20% |
| Расстояние между колонами | 2.2 - 6 м | 2.2 - 6 м |
|
Однопролëтное |
Многопролëтное |
|
|
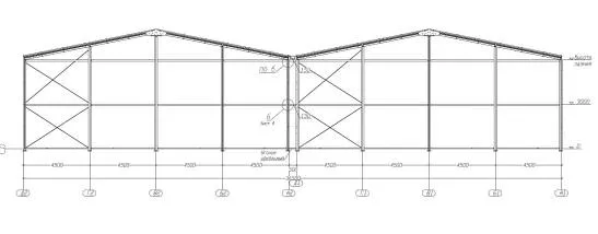
Здание системы Спайдер-В® имеет стандартный каркас прямоугольной формы, вертикальные стены и двускатную крышу с уклоном 20% и карнизом 300 мм. Система позволяет стыковать здания по длинной или короткой стороне. Кровля многопролетных зданий оснащена организованной водосточной системой со специальным утепленным желобом для «теплых» зданий.
*Пролеты одинаковой длины и высоты.
*Пролеты разной длины, но одинаковой высоты. Примечание: пролеты должны иметь равный шаг колонн.
Стальной каркас
Каркасная система состоит из основных и торцевых рам.
Поперечная устойчивость здания обеспечивается системой ветровых связей. Продольная устойчивость торцевых рам увеличена за счет связей по торцевым стенам.
Вспомогательные несущие элементы изготавливаются из холодногнутых оцинкованных профилей. Стеновые и кровельные прогоны поддерживают ограждающие конструкции и помогают перераспределять нагрузку на основные рамы.
Статическая модель стального каркаса представляет собой портальную раму с шарнирным сопряжением колонн с фундаментом. Двухпролетный каркас - двойная портальная рама с аналогичным сопряжением колонн с фундаментом.
Для сельскохозяйственной промышленности применяются базовые модели зданий Спайдер-В® (Агро-1, Агро-2, Агро-3). Здания Спайдер для применения в качестве торговых и выставочных залов, спортзалов и бассейнов изготавливаются с учетом рекомендаций производителя.
Здания системы Спайдер производятся в соответствии с Техническими Условиями 5281-006-48363367-02.
Цвета и покрытия
Цветовая гамма стандарта RR и RAL
Возможно использование любого другого цвета по шкале RAL.
|
Цветовая гамма RAL |
Сэндвич-панели |
Трапецеидальное профилирование |
RWS | |||
|
|
Поверхность панели | Стены S3 | Стены BC-18 | Кровля BH-45 |
|
|
|
|
RAL 9003 Белый |
внешняя, внутренняя |
X |
X |
X |
X |
|
|
RAL 9002 Белая ночь |
внешняя, внутренняя |
X |
X |
X |
X |
|
|
RAL 9006 Серебристый |
внешняя, внутренняя |
X |
X |
X |
X |
|
|
RAL 1014 Бежевый |
внешняя, внутренняя |
X |
X |
X |
X |
|
|
RAL 1015 Светло-бежевый |
внешняя, внутренняя |
X |
X |
X |
X |
|
|
RAL 7047 Светлосерый |
внешняя, внутренняя |
X |
X |
X |
X |
|
|
RAL 7004 Серый |
внешняя, внутренняя |
X |
X |
X |
X |
|
|
RAL 5012 Голубой |
внешняя, внутренняя |
X |
X |
X |
X |
|
|
RAL 5005 Синий |
внешняя, внутренняя |
X |
X |
X |
X |
|
|
RAL 6002 Зеленый |
внешняя, внутренняя |
X |
X |
X |
|
|
|
RAL 3003 Красный |
внешняя, внутренняя |
X |
X |
X |
X |
|
|
RAL 1018 Желтый |
внешняя, внутренняя |
X |
X |
X |
X |
|
Цветовая гамма RR |
Сэндвич-панели |
Трапецеидальное профилирование |
RWS | |||
|
|
Поверхность панели | Стены S3 | Стены BC-18 | Кровля BH-45 |
|
|
|
|
RR 20 Белый |
внешняя, внутренняя |
X |
X |
X |
X |
|
|
RR 21 Светло-серый |
внешняя, внутренняя |
X |
X |
X |
X |
|
|
RR 35 Синий |
внешняя, внутренняя |
X |
X |
X |
X |
Ограждающие конструкции
Комплектация Холодное
| Стеновые прогоны: |
|
| Кровельные прогоны: |
|
| Покрытие: |
|
Комплектация Tëплое
Сэндвич панели - самый подходящий вариант кровельных и стеновых ограждающих конструкций для теплых зданий.
| Стены |
|
| Вертикальная раскладка панелей, стеновые прогоны: |
|
| Изоляция стен (эконом)*: |
|
| Кровля |
|
| Сэндвич панели: |
|
| Изоляция кровли (эконом)*: |
|
| Покрытие: |
|
| *Внутренняя обшивка профлистом -18 по запросу. |
|
Варианты внешней обшивки
|
|
|
| Стеновые панели | Кровельные панели | Профлист с трапецеидальным профилированием |
Стандартный вариант профилирования верхней и нижней обшивок панелей:
|
Стандартный вариант профилирования верхней обшивки панелей:
|
Профлист BC-18 Профлист BH-45 |
Нащельники и крепеж
Соединительные детали, уплотнители и крепежные элементы обеспечивают необходимый уровень теплоизоляции и воздухонепроницаемости.
В комплекте с ограждающими конструкциями серийных зданий используются нащельники стандартного типа, которые изготавливаются из окрашенной листовой стали. Цвет нащельников совпадает с цветом сэндвич панелей или трапецеидальных профлистов.
Крепеж панелей к каркасу зданий осуществляется при помощи самосверлящих винтов. Все крепежные элементы оцинкованные.
Запрос на расчет




